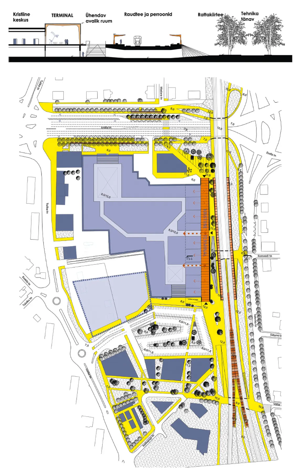
Kristiine ühistransporditerminali võistlustöö

Kristiines on võimalus kogu Tallinna jaoks olulise ühistranspordi sõlme rajamiseks, mis ühendaks mitmed rongiliinid (Lilleküla jaamas) ja mitmed Tallinna linnaliinid (Endla tänaval). 2012. aastal toimus arhitektuurivõistlus, mis oli esimene katsetus selle sõlme lahendamiseks. Võistlustöö "Roheline" proovis seda sõlme inimsõbralikult ja sidusalt kavandada, juhindudes võimalikult palju olemasolevast struktuurist.